Кориолисовый счетчик-расходомер КТМ РуМАСС F – серия Компактная версия ®
Коммерческий и технологический учет количества нефти и нефтепродуктов, газов, СПГ и криогенных сред
Преимущества:
- Расходомеры с условными диаметрами от 25 до 100 мм;
- Высокотемпературное исполнение до +350°С;
- Рабочее давление до 20 МПа;
- Возможность изготовления с монтажными размерами согласно требованиям заказчика;
- Сниженные гидравлические потери на 20% по сравнению с лучшими зарубежными аналогами;
- Погрешность измерения ±0,1 – 0,5%;
- Учет высоковязких сред;
- Компактная версия;
- Возможность самодренирования;
- МПИ – 5 лет, срок службы – 20 лет.
|
Наименование параметра |
Значение параметра |
||||
|
Диаметр условного прохода, мм |
25 |
50 |
80 |
100 |
|
|
Массовый расход, кг/ч: |
Номинальный1) |
17 000 |
44 000 |
130 000 |
300 000 |
|
Максимальный |
22 500 |
66 000 |
195 000 |
450 000 |
|
|
Стабильность нуля ZS8), кг/ч |
0,85 |
2,2 |
6,5 |
15 |
|
|
Диапазон измерений плотности, кг/м3 |
от 650 до 2000 |
||||
|
Динамический диапазон измерений (от номинального расхода) |
1:208) |
||||
|
Пределы относительной погрешности измерений (вычислений) δ0, %: |
|
||||
|
массового расхода и массы жидкости9) |
±0,23); ±0,253); ±0,53) |
||||
|
объёмного расхода и объёма жидкости |
±0,23); ±0,253); ±0,53) |
||||
|
массового расхода сжиженного природного газа и других криогенных сред |
±0,5 |
||||
|
массового расхода природного газа и других газовых сред |
±0,5; ± 0,355) |
||||
|
при имитационном методе поверки |
δ0 + 0,1 |
||||
|
массы и массового расхода брутто нефти/нефтепродуктов при прямом и косвенном методе динамических измерений по ГОСТ 8.587 |
±0,25 |
||||
|
массы и массового расхода нетто нефти/нефтепродуктов при прямом и косвенном методе динамических измерений по ГОСТ 8.587 |
±0,35 |
||||
|
Повторяемость массового и объёмного расхода рабочей среды, % |
±0,05 |
||||
|
Погрешность измерений плотности, кг/м3 |
±104); ±5; ±1; ±0,5; ±0,37); ±0,26) |
||||
|
Повторяемость измерения плотности, кг/м3 |
±0,1 |
||||
|
Погрешность измерений температуры, ºС |
±1 |
||||
|
Повторяемость температуры, ºС |
±0,2 |
||||
|
Температура рабочей среды, ºС |
стандартное интегральное исполнение |
от минус 60 до плюс 1252) |
|||
|
стандартное разнесённое исполнение |
от минус 60 до плюс 2002) |
||||
|
криогенное исполнение (разнесенное) |
от минус 196 до плюс 802) |
||||
|
высокотемпературное исполнение (разнесенное) |
от минус 10 до плюс 3502) |
||||
|
_______________ 1) Номинальный расход Qном – расход, при котором значение перепада давления на измерительном приборе при использовании в качестве среды воды с температурой от 20 °С до 25 °С и давлением от 0,1 до 0,2 МПа составляет приблизительно 0,1 МПа; 2) С функцией компенсации показаний расхода и плотности по температуре; 3) При калибровке и/или поверке с помощью компакт-прувера, трубопоршневой установки, эталонов 2-го разряда; 4) При имитационной поверке; 5) При калибровке на газе с использованием калибровочных коэффициентов; 6) При калибровке в лаборатории под условия места эксплуатации; 7) При калибровке в рабочих условиях на месте эксплуатации с помощью поточного плотномера, рабочего эталона; 8) При массовом расходе Q < 0,05·Qном относительная погрешность измерений рассчитывается по формуле ; 9) При поверке расходомеров в составе СИКН, СИКНП или АСН, допускается их дальнейшая эксплуатация с пределом допускаемой относительной погрешности измерений массового расхода (массы) жидкости ±0,25% в качестве рабочего и ±0,2% в качестве контрольного. |
|||||
![]() |
![]() |
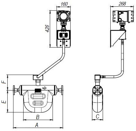
| КТМ РуМАСС F 025: | |
| а) с БОИ Лайт; | б) с БОИ стандартного исполнения |
|
Габаритные размеры счетчика-расходомера кориолисового |
|||||
|
Типоразмеры |
Размер А, мм |
Размер B, мм |
Размер C, мм |
Размер E, мм |
Размер F, мм |
|
КТМ РуМАСС F 025 |
541-631 * |
338 |
124 |
258 |
177 |
|
_______________ * В зависимости от фланцевого исполнения |
|||||
![]() |
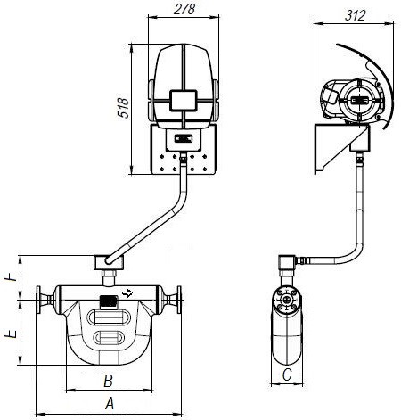
![]() |
| КТМ РуМАСС F 050 интегрального исполнения: | |
| а) с БОИ Лайт; | б) с БОИ стандартного исполнения |
|
Габаритные размеры счетчика-расходомера кориолисового |
|||||||
|
Типоразмеры |
Размер А, мм |
Размер B, мм |
Размер C, мм |
Размер D, мм |
Размер E, мм |
Размер F, мм |
|
|
БОИ Лайт |
БОИ стандартного исполнения |
||||||
|
КТМ РуМАСС F 050 |
591-705 * |
371 |
162 |
242 |
332 |
356 |
554 |
|
_______________ * В зависимости от фланцевого исполнения |
|
|
|||||
![]() |
![]() |
| КТМ РуМАСС F 080-100 интегрального исполнения: | |
| а) с БОИ Лайт; | б) с БОИ стандартного исполнения |
|
Габаритные размеры счетчика-расходомера кориолисового |
||||||
|
Типоразмеры |
Размер А, мм |
Размер B, мм |
Размер C, мм |
Размер E, мм |
Размер F, мм |
|
|
БОИ Лайт |
БОИ стандартного исполнения |
|||||
|
КТМ РуМАСС F 080 |
906-1054 * |
578 |
180 |
202 |
381,7 |
569,6 |
|
КТМ РуМАСС F 100 |
1152-1390 * |
788 |
240 |
300 |
416,7 |
606,7 |
|
_______________ * В зависимости от фланцевого исполнения |
||||||





