Кориолисовый счетчик-расходомер КТМ РуМАСС E-серия ®
Коммерческий и технологический учет количества нефти и нефтепродуктов, газов, СПГ и криогенных сред
Преимущества:
- Значительно бОльший расход Qmax при одинаковом Ду линии по сравнению с ведущими
мировыми компаниями; - Расходомеры с условными диаметрами от 2 до 250 мм изготавливаются на собственном
производстве полного цикла; - Высокотемпературное исполнение до +350°С/+400°С;
- Рабочее давление до 40 МПа;
- Сниженные гидравлические потери на 15-20% по сравнению с лучшими зарубежными
аналогами; - Функция вычисления массы нефти и нефтепродуктов (калькулятор нефти);
- Встроенная функция коррекции по давлению и температуре;
- Метрологически обеспеченный, поверяемый канал измерения плотности с погрешностью
до ±0,2 кг/м³; - Метрологически обеспеченный, поверяемый канал измерения температуры;
- Учет СПГ до -196 °С и других криогенных сред;
- Диагностика состояния измерительных трубок Clever Control Tool Software® * ;
- Возможность беспроливной поверки расходомера без снятия либо со снятием с
трубопровода, а также проливки расходомера при помощи компакт-прувера или
трубопоршневой установки (ТПУ); - МПИ – 5 лет, срок службы – 20 лет;
- Возможность изготовления с монтажными размерами согласно требованиям заказчика.
МЕТРОЛОГИЧЕСКИЕ И ТЕХНИЧЕСКИЕ ХАРАКТЕРИСТИКИ
|
Наименование параметра |
Значение параметра |
|||||||||
|
Диаметр условного прохода, мм |
2 |
8 |
15 |
25 |
50 |
80 |
100 |
200 |
250 |
|
|
Массовый расход, кг/ч: |
Номинальный1) |
120 |
1 000 |
3 820 |
18290 |
50 580 |
177 750 |
566 892 |
762 000 |
1 340 000 |
|
Максимальный |
130 |
1 800 |
7 500 |
30050 |
91 700 |
293 400 |
645 000 |
1 470000 |
2 550 000 |
|
|
Стабильность нуля ZS8), кг/ч |
0,006 |
0,05 |
0,19 |
0,92 |
2,53 |
8,9 |
28 |
38 |
67 |
|
|
Диапазон измерений плотности, кг/м3 |
от 650 до 2000 |
|||||||||
|
Динамический диапазон измерений (от номинального расхода) |
1:208) |
|||||||||
|
Пределы относительной погрешности измерений (вычислений) δ0, %:
|
||||||||||
|
массового расхода и массы жидкости9) |
±0,1; ±0,15 ±0,23); ±0,253); ±0,53) |
|||||||||
|
объёмного расхода и объёма жидкости |
±0,11; ±0,15; ±0,23); ±0,253); ±0,53) |
|||||||||
|
массового расхода сжиженного природного газа и других криогенных сред |
±0,5 |
|||||||||
|
массового расхода природного газа и других газовых сред |
±0,5; ± 0,355) |
|||||||||
|
при имитационном методе поверки |
δ0 + 0,1 |
|||||||||
|
массы и массового расхода брутто нефти/нефтепродуктов при прямом и косвенном методе динамических измерений по ГОСТ 8.587 |
±0,25 |
|||||||||
|
массы и массового расхода нетто нефти/нефтепродуктов при прямом и косвенном методе динамических измерений по ГОСТ 8.587 |
±0,35 |
|||||||||
|
Повторяемость массового и объёмного расхода рабочей среды, % |
±0,05 |
|||||||||
|
Погрешность измерений плотности, кг/м3 |
±104); ±5; ±1; ±0,5; ±0,37); ±0,26) |
|||||||||
|
Повторяемость измерения плотности, кг/м3 |
±0,1 |
|||||||||
|
Погрешность измерений температуры, ºС |
±1 |
|||||||||
|
Повторяемость температуры, ºС |
±0,2 |
|||||||||
|
Температура рабочей среды, ºС |
стандартное интегральное исполнение |
от минус 60 до плюс 1252) |
||||||||
|
стандартное разнесённое исполнение |
от минус 60 до плюс 2002) |
|||||||||
|
криогенное исполнение (разнесенное) |
от минус 196 до плюс 802) |
|||||||||
|
высокотемпературное исполнение (разнесенное) |
от минус 10 до плюс 4002) |
|||||||||
|
1) Номинальный расход Qном – расход, при котором значение перепада давления на измерительном приборе при использовании в качестве среды воды с температурой от 20 °С до 25 °С и давлением от 0,1 до 0,2 МПа составляет приблизительно 0,1 МПа;
2) С функцией компенсации показаний расхода и плотности по температуре;
3) При калибровке и/или поверке с помощью компакт-прувера, трубопоршневой установки, эталонов 2-го разряда;
4) При имитационной поверке;
5) При калибровке на газе с использованием калибровочных коэффициентов;
6) При калибровке в лаборатории под условия места эксплуатации;
7) При калибровке в рабочих условиях на месте эксплуатации с помощью поточного плотномера, рабочего эталона;
8) При массовом расходе Q < 0,05·Qном относительная погрешность измерений рассчитывается по формуле ;
9) При поверке расходомеров в составе СИКН, СИКНП или АСН, допускается их дальнейшая эксплуатация с пределом допускаемой относительной погрешности измерений массового расхода (массы) жидкости ±0,25% в качестве рабочего и ±0,2% в качестве контрольного. |
||||||||||
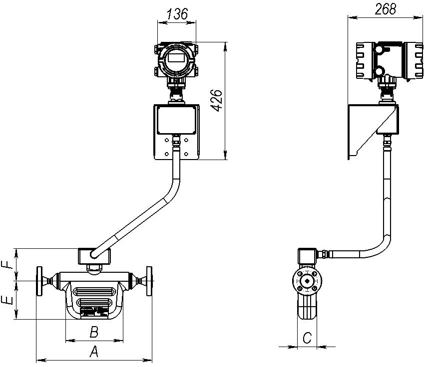
![]() |
![]() |
| а)КТМ РуМАСС Е 002-008 с БОИ Лайт |
б)КТМ РуМАСС Е 002-008 с БОИ стандартного исполнения |
|
Габаритные размеры счетчика-расходомера кориолисового |
|||||
|
Типоразмеры |
Размер А, мм |
Размер B, мм |
Размер C, мм |
Размер E, мм |
Размер F, мм |
|
КТМ РуМАСС Е 002 |
304-412 * |
148 |
50 |
113 |
122 |
|
КТМ РуМАСС Е 008 |
392-500 * |
206 |
70 |
138 |
119 |
|
_______________ * В зависимости от фланцевого исполнения |
|||||
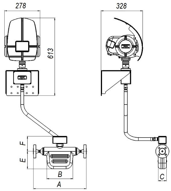
![]() |
![]() |
| а)КТМ РуМАСС Е 015-025 с БОИ Лайт |
б) КТМ РуМАСС Е 015-025 с БОИ стандартного исполнения |
|
Габаритные размеры счетчика-расходомера кориолисового |
|||||
|
Типоразмеры |
Размер А, мм |
Размер B, мм |
Размер C, мм |
Размер D, мм |
Размер E, мм |
|
КТМ РуМАСС Е 015 |
151-306 * |
400 |
56 |
153 |
282 |
|
КТМ РуМАСС Е 025 |
204-348 * |
570 |
90 |
183 |
419 |
|
_______________ * В зависимости от фланцевого исполнения |
|||||
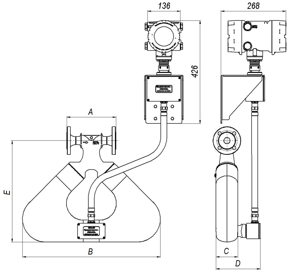
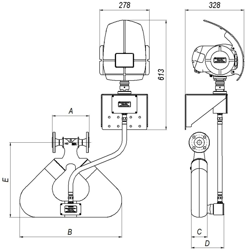
![]() |
![]() |
| а) КТМ РуМАСС Е 050-250 интегрального исполнения с БОИ Лайт |
б) КТМ РуМАСС Е 050-250 интегрального исполнения с БОИ стандартного исполнения |
|
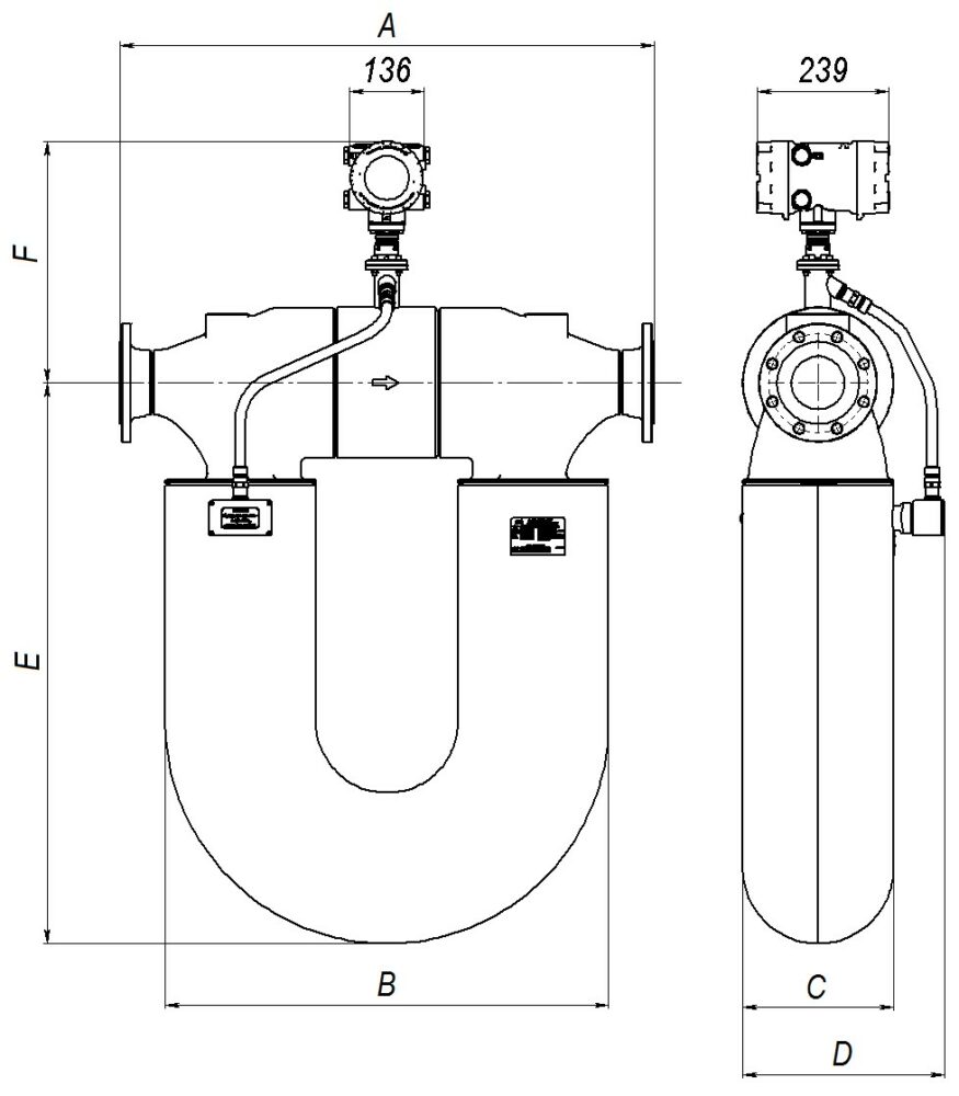
Габаритные размеры счетчика-расходомера кориолисового |
|||||||
|
Типоразмеры |
Размер А, мм |
Размер B, мм |
Размер C, мм |
Размер D, мм |
Размер E, мм |
Размер F, мм |
|
|
БОИ Лайт |
БОИ стандартного исполнения |
||||||
|
КТМ РуМАСС Е 050 |
543-708 * |
501 |
145 |
236 |
748 |
325 |
513 |
|
КТМ РуМАСС Е 080 |
813-1108 * |
767 |
208 |
300 |
998 |
373 |
564 |
|
КТМ РуМАСС Е 100 |
969-1406 * |
806 |
274 |
367 |
1019 |
439 |
627 |
|
КТМ РуМАСС Е 200 |
992-1149 * |
806 |
324 |
416 |
1250 |
439 |
627 |
|
КТМ РуМАСС Е 250 |
1030-1222 * |
806 |
354 |
446 |
1367 |
437 |
627 |
|
_______________ * В зависимости от фланцевого исполнения |
|
|
|||||





